針對煉油廠催化裂化裝置分餾塔底循環油漿泵的機械密封壽命短、泄漏頻繁、檢修率高的問題。文章分析了導致油漿泵機械密封泄漏的原因,分別對油漿泵機械密封的選型、機械密封沖洗方案進行了改造,改造后延長了機械密封的使用壽命,達到了長周期運行。
催化分餾塔底油漿循環泵是煉油廠催化裂化裝置的關鍵設備,我廠油漿泵為開一備一,由嘉利特荏原泵業有限公司制造。該泵為單級單吸懸臂式離心泵,其泵的型號為200ZPY450;流量為376m3/h,揚程為150 m;入口壓力0.2 MPa,出口壓力2.0 MPa,介質為油漿;溫度340 ℃,采用波紋管式機械密封。油漿泵輸送介質溫度高,密度大(840~1 010 kg/m3),含有較高濃度的催化劑(Al2O3及SiO2)等固體顆粒,最高濃度可達25 g/L,這些固體顆粒吸附性強,粘附在機封波紋管上,使波紋管波谷內沉積大量的催化劑顆粒,從而使波紋管失彈,導致機械密封頻繁泄漏,給裝置的長周期運行造成了很大的隱患。
1、機械密封系統失效原因分析
1.1、機械密封系統簡介
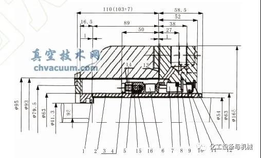
我廠油漿泵機械密封采用單端面波紋管式,如圖1 所示,該機械密封靜環材質為碳化硅(SiC),動環材質為石墨,動環輔助密封圈材質為柔性石墨,其余材料均為不銹鋼。

圖1 波紋管集裝式機械密封結構組裝圖
1-軸封圈;5-動環密封圈;6-金屬波紋管;7-靜環;11-水封;12-恰簧;16-動環輔助密封圈
機械密封的輔助系統采用了外沖洗結構(PLAN32 方案),密封沖洗液為30 ℃催化自產柴油,壓力為0.6 MPa,沖洗液經機封壓蓋進入密封腔,密封沖洗液溫度較低,能及時帶走摩擦熱,防止動靜環以及波紋管結焦,同時沖走密封腔內的雜質及結焦物,保證密封腔潔凈及潤滑摩擦副。此外該機械密封還采用了低壓蒸汽冷卻系統,冷卻蒸汽既起到冷卻的作用,同時又能防止密封腔內液體進入彈性元件腔,從而使波紋管機械密封在更加潔凈的條件下運行。
1.2、機械密封失效原因分析
通過對失效機械密封的拆修解剖分析,發現引起機械密封失效泄漏的原因主要有以下幾個方面:
1.2.1、工藝操作造成機械密封失效
在日常開停工過程中,由于操作原因造成油漿泵入口壓力波動較大時,使油漿泵反生抽空、汽蝕及憋壓等異常現象,引起較大的軸向力,使動、靜環接觸面分離,從而造成機封泄漏;日常操作中油漿泵輸送介質中含有催化劑顆粒狀物質,運轉過程中進入摩擦副端面起研磨作用,造成機封波紋管內側結焦、積碳及含固體催化劑顆粒使波紋管失彈及密封面發生劇烈磨損而失效。
1.2.2、設備安裝運行過程中造成機械密封失效
機械密封動靜環密封端面間的摩擦工況,是影響機封密封壽命的主要因素。油漿泵安裝運行期間,機封密封存在以下幾種失效:
(1)安裝不當造成機械密封泄漏
安裝機械密封時壓縮量過大,導致摩擦副端面嚴重磨損、擦傷;動環密封圈過緊,彈簧無法調整動環的軸向浮動量;靜環密封面過松,當動環軸向浮動時,靜環脫離靜環座。
(2)由于密封端面失去潤滑油膜而造成機械密封泄漏
因端面密封載荷的存在,在密封腔缺乏液體時啟動泵而發生干摩擦,造成機封泄漏;介質壓力低于飽和蒸汽壓力,使得密封端面液膜發生閃蒸,喪失潤滑,造成機封泄漏。
(3)機封沖洗造成機械密封泄漏
油漿泵機械密封輔助沖洗系統要保障機封冷卻系統沖洗液持續供給,防止端面沖洗液中斷,油漿泵運行過程中沖洗液中斷,使密封端面溫度升高,潤滑膜閃蒸而降低密封端面的潤滑,從而加劇磨損,造成機械密封泄漏。
2、機械密封改造方案
2.1、串聯式機械密封結構及工作原理
將油漿泵機械密封由單端面改為雙端面,該方案為兩級機械密封(即串聯機封),如圖2 所示。第一級密封介質為柴油。兩級密封之間設蓄能罐,帶壓氣囊蓄能器加入隔離液(封液)作為二級密封的密封介質。當第一級密封泄漏后,蓄能器將隔離介質壓入密封腔內,使泵送介質無法泄漏到大氣,同時蓄能器上的壓力開關報警。

圖2 串聯機械密封結構
1-彈簧盒組件;2-軸套;3-動環Ⅰ;4-泵端蓋;5-靜環Ⅰ;6-靜環座;7-壓蓋;8-傳動環;9-轉動圈;10-泵軸;11-靜環Ⅱ;12-動環Ⅱ;13-彈簧;14-泵送環;15-O 形圈
與單端面機械密封相比,串聯機封具有以下有點:
(1)適用于有毒有害等高危介質,可實現介質的零溢出,降低了危險介質泄漏到大氣中的風險。
(2)雙重保護作用,主密封失效,二級密封可以短時間起到主密封的作用。
(3)通過壓力開關,液位開關可以實時監測密封的失效情況。
2.2、API 32+53B 密封沖洗方案工作原理及特點
API 32+53B 方案工作原理:外部管道系統為加壓串聯密封的二級密封提供隔離液,預先加了壓的氣囊蓄能罐提供壓力給循環系統,如圖3 所示。蓄能器為有壓的雙端面密封提供隔離液(封液),采用換熱器對隔離液進行降溫。

圖3 密封沖洗方案API 32+53B
它的主要優點有:適用于高溫工況,區別于自沖洗,從外部引入潔凈沖洗液;帶走密封端面處的雜質顆粒,對密封起到清潔作用;封液壓力高于介質壓力,保證工藝介質零排放;系統配有壓力報警開關,可及時發現密封失效情況;當一級密封失效時二級密封實現主密封功能,提高設備運行安全安級。
3、結論
實施上述改造后,催化裂化裝置分餾塔底油漿泵P208 運行狀況良好,機械密封處于穩定狀態,有效杜絕高危機泵密封泄漏的危險介質排放至大氣的隱患,與此同時為機泵密封維修提供預警,機泵連續運轉的可靠性得到了明顯提升(我廠油漿泵至今已經累計運行8 600 h 無故障),降低了機修車間維修工作量,減少了維修成本。總結上述改造,得出以下結論:
(1)機械密封為雙端面波紋管密封,在一級密封失效時二級密封實現主密封功能,與單端面密封相比,雙重非承壓密封能降低回路泄漏風險,提高設備運行安全等級;
(2)機械密封輔助系統的功能在于采用沖洗、循環、熱對流的工作方式,控制機械密封的溫度、潤滑等式況參數,建立較理想的機械密封的工作環境,提高機械密封的可靠性,延長使用壽命;有效地改善了機械密封的運行狀況,為高危介質泵機械密封長周期運行提供了重要保障。
作者簡介:孟 亮,中石油青海油田格爾木煉油廠。











